好消息,西咸新区空港新城沃家花园·云起保租房人才公寓首期将开放234套一室(45平方米)房源已准备就绪,现在开始预订。

人才公寓位于西咸新区空港新城翼泓路以东、腾霄四街以南、广德路以西、腾霄三街以北,总建筑面积17.49万平方米,包含酒店、公寓、办公、商业4个业态。

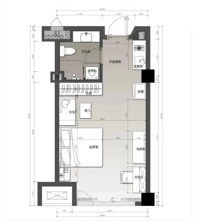
| 一室(45平方米) |

| 一室一厅(50平方米) |

| 两室一厅(75平方米) |
公寓房源共有1828间,分为一室(45平方米)、一室一厅(50平方米)、两室一厅(75平方米)3种户型,主要以一室(45平方米)户型为主,每个单元配备4部电梯。

为向广大入住群众提供更加优质的居住服务体验,西咸新区空港新城从环境、设施、配套、服务等多方面入手,打造舒适宜居的崭新家园。
家温馨
人才公寓以现代风格设计为主,色系清新、层次感和空间立体感十足,打造适合居住者的理想空间,精心摆放的软装家具、品牌家电、艺术画等,让整个房间看上去更加温馨舒适,氛围感拉满。

拎包住
房间通透明亮,户内配置设施完善,高品质家居配置、高颜值装修,空调、冰箱、洗衣机、沙发、电视、微波炉、独立卫浴、衣柜等设施一应俱全,可满足各类人群的品质化住房需求,让拎包入住不再是梦。

智能化
房屋实行智能信息化管理,公共区域均配置24小时监控安保,户内配置智能密码锁,并提供一键报修、入户保洁等高品质专属服务,为入住人员提供贴心、安全的居住体验。
配套全
园区配有篮球场,即将开放共享健身房、共享书吧、共享厨房、品牌咖啡、便利店、共享洗衣等,还设有地下车位1200个,充电桩300个,保障大家无忧停车、无忧充电。此外,园区内还配套1900平方米商业广场,酒店及高品质、低密度商业办公楼,可满足日常居家、办公、会议、接待等一站式需求。
环境优
项目设计立足于“新城镇、新社区、新居民、新生活”的理念,借鉴中式传统园林式规划特点,呈中轴对称、分组团布局,通过中心绿化带形成“一点一轴五组团”的整体规划结构。室外环境优美,绿树草地成荫,并配有健身跑道,方便群众户外运动,乐享天然氧吧,提升居住舒适感。

区位佳
“15分钟生活圈”全覆盖,周围拥有影院、医院、公园等生活配套。距离云间花境2公里、空港花园美食街2.5公里、北杜街角公园3.8公里、王府井·赛特奥莱5.1公里、北杜人民医院5.2公里、西安咸阳国际机场8.4公里,多元场景聚集,可满足住户美食、购物、娱乐、就医、出行等多种需求。
首期开放234套一室房源基础租金800元/间/月,现在预定可享优惠大礼包。房价7.5折优惠(600元/间/月),30间以上7.3折优惠(584元/间/月),100间以上7折优惠(560元/间/月)。赠送哑铃、瑜伽垫、被褥、茶杯、电子秤、拖鞋等生活用品。一次性支付一年房租,可享一年免费停车位。可享受云间花境品·云茗用餐9折优惠,空港新城运动中心办卡6折优惠,空港汽租洗车服务9折优惠。
咨询服务电话
曹先生 18292889736;
王女士 13361255690。
扫描下方二维码了解入住登记所需资格审查资料及获取方式


陕公网安备 61019602000052号