秦汉樾园商业项目批前公示

公示时间:2022年4月14日

项目名称:秦汉樾园商业

建设单位:陕西省西咸新区秦汉新城开发建设集团有限责任公司

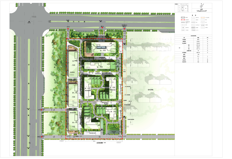
项目概况:项目位于秦汉新城泾渭大道以东、天汉大道以南、樾园住宅以西区域。本项目规划净用地面积40610㎡,总建筑面积119244.7㎡,主要建设酒店、办公、商业等。详见总平面示意图。

公示期:7个工作日

批前公示并非最终审批结果。在公示期内,利害关系人若有意见,可来电向西咸新区自然资源和规划局(秦汉)工作部反映(联系电话:029-33136581)。

附件:1、总平面示意图

             2、建筑方案效果图

 

   西咸新区自然资源和规划局(秦汉)工作部 

   2022年4月14日