汉惠大道公共服务安全中心项目规划方案设计批前公示

公示时间:2024年4月30日

项目名称:汉惠大道公共服务安全中心项目

建设单位:秦汉新城保障房建设管理有限公司

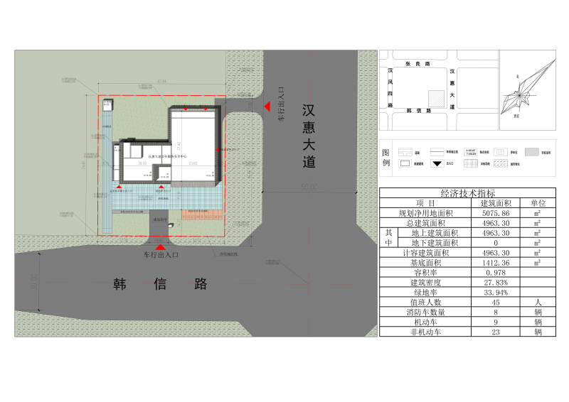
项目概况:项目位于西咸新区秦汉新城汉惠大道以西、韩信路以北区域,规划用地面积为5075.86平方米,规划总建筑面积4963.3平方米,主要建设业务技术用房及相关配套。详见总平面示意图。

公示期:7个工作日

批前公示并非最终审批结果。在公示期内,利害关系人若有意见,可来电向西咸新区自然资源和规划局(秦汉)工作部反映。(联系电话:029-33136581)

附件1:总平面示意图

附件2:建筑方案效果图

西咸新区自然资源和规划局(秦汉)工作部

2024年4月30日