公示时间:2023年2月22日
项目名称:咸阳鸿建科技实业有限公司迁建塑料管道生产项目
建设单位:咸阳鸿建科技实业有限公司
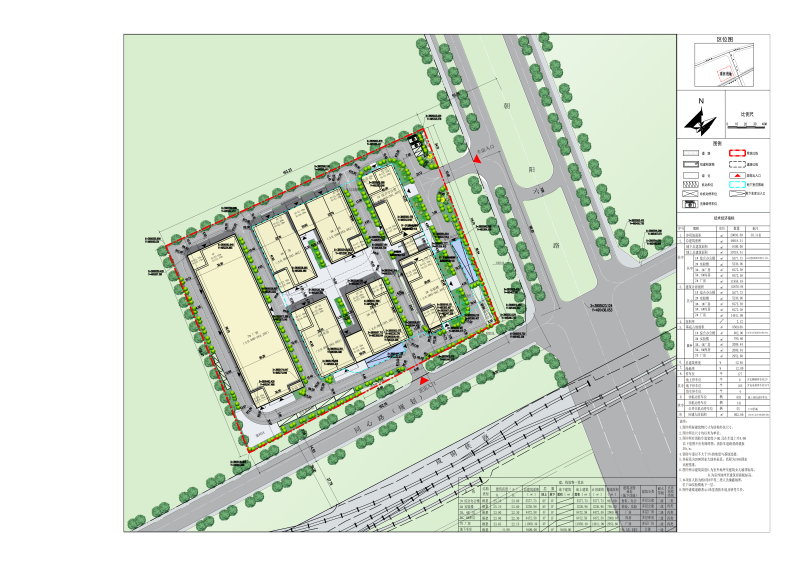
项目概况:项目位于西咸新区秦汉新城兰池三路以南,朝阳六路以西,咸铜铁路以北区域。规划净用地面积20093.69㎡,总建筑面积48818.34㎡,主要建设厂房及相关配套。详见总平面示意图。
公示期:7个工作日
批前公示并非最终审批结果。在公示期内,利害关系人若有意见,可来电向西咸新区自然资源和规划局(秦汉)工作部反映。(联系电话:029-33136581)
附件:
1.总平面示意图

2.建筑方案效果图



西咸新区自然资源和规划局(秦汉)工作部
2023年2月22日

陕公网安备 61019602000052号