中铁一局集团(西安)有限公司开发建设的中铁新视界大厦项目位于西咸新区秦汉新城泾渭大道以东,陈平路以南,韩信路以北区域。现建设单位申请变更建设工程规划许可内容,涉及总平面图及建筑方案设计。
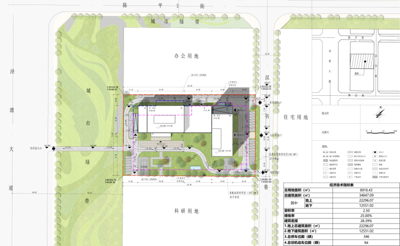
主要变更内容如下表:
序号 | 内容 | 原方案 | 变更方案 | |
1 | 总建筑面积 | 34847.09㎡ | 34599.24㎡ | |
其中 | 地上建筑面积 | 22296.07㎡ | 22080.52㎡ | |
地下建筑面积 | 12551.02㎡ | 12518.72㎡ | ||
2 | 容积率 | 2.50 | 2.48 | |
3 | 建筑密度 | 28.39% | 37.89% | |
4 | 建筑高度 | 70.2M | 70.3M | |
5 | 层数 | 16F | 14F | |
6 | 机动车位 | 346 | 343 | |
其他内容详见附件附图。
建设单位:中铁一局集团(西安)有限公司
设计单位:基准方中建筑设计股份有限公司
批前公示并非最终审批结果。在公示期内,利害关系人若有意见,可来电向西咸新区自然资源和规划局(秦汉)工作部反映。(联系电话:029-33136581)
附件1:原总平面示意图

附件2:原建筑方案效果图


附件3:变更总平面示意图

附件4:变更建筑方案效果图


西咸新区自然资源和规划局(秦汉)工作部
2024年1月26日

陕公网安备 61019602000052号