公示时间:2024年4月30日
项目名称:汉惠大道公共服务安全中心项目
建设单位:秦汉新城保障房建设管理有限公司
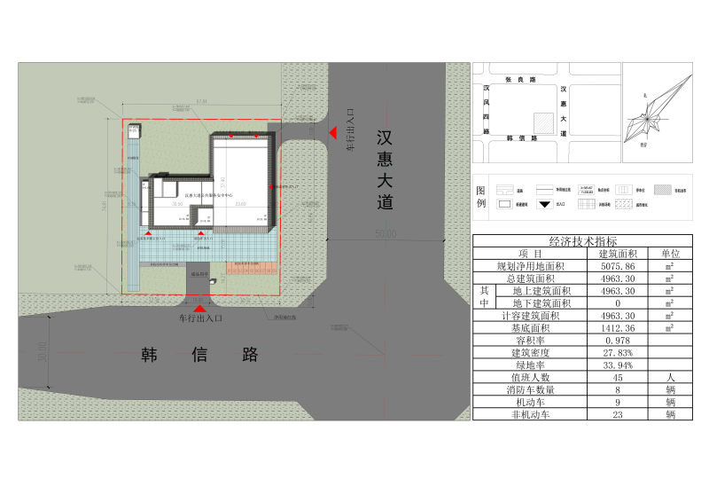
项目概况:项目位于西咸新区秦汉新城汉惠大道以西、韩信路以北区域,规划用地面积为5075.86平方米,规划总建筑面积4963.3平方米,主要建设业务技术用房及相关配套。详见总平面示意图。
公示期:7个工作日
批前公示并非最终审批结果。在公示期内,利害关系人若有意见,可来电向西咸新区自然资源和规划局(秦汉)工作部反映。(联系电话:029-33136581)
附件1:总平面示意图

附件2:建筑方案效果图


西咸新区自然资源和规划局(秦汉)工作部
2024年4月30日

陕公网安备 61019602000052号