咸阳鸿建科技实业有限公司迁建塑料管道生产项目规划设计方案批前公示

公示时间:2023年2月22日

项目名称:咸阳鸿建科技实业有限公司迁建塑料管道生产项目

建设单位:咸阳鸿建科技实业有限公司

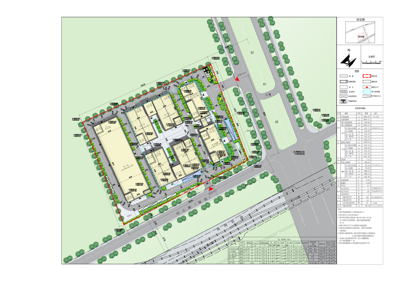
项目概况:项目位于西咸新区秦汉新城兰池三路以南,朝阳六路以西,咸铜铁路以北区域。规划净用地面积20093.69㎡,总建筑面积48818.34㎡,主要建设厂房及相关配套。详见总平面示意图。

公示期:7个工作日

批前公示并非最终审批结果。在公示期内,利害关系人若有意见,可来电向西咸新区自然资源和规划局(秦汉)工作部反映。(联系电话:029-33136581)

附件:

1.总平面示意图

2.建筑方案效果图

西咸新区自然资源和规划局(秦汉)工作部

2023年2月22日